Our work speaks for itself.Take a look at a selection of our recent projects, crafted with care and designed to make an impact. Each one tells a story of creativity, collaboration, and results.
MG2 House
Location
Beira, Mozambique
Year
2024
This 500 m² modern farmhouse study explores principles of self-sustainability, integrating existing elements such as the pool and porch into a cohesive design. Positioned at the corner of a one-hectare plot dedicated to crops, fruit trees, and small livestock, the project creates a strong dialogue between architecture and productive landscape. Conceived as a second home for hosting, the house emphasizes both comfort and connection to the land.
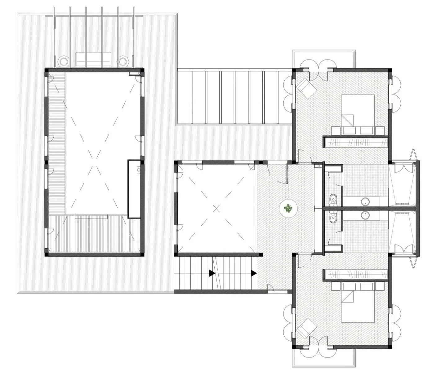
The built area of 279 m² is distributed across two levels, with the main living, dining, and service spaces located on the ground floor, complemented by two guest bedrooms on the upper level. A wraparound balcony provides continuous views over the farmland and leads to a rooftop terrace, reinforcing the building’s role as both a retreat and a vantage point within its rural setting.
Design Integration and Sustainability
The building is designed to harmonize with its surroundings through fragmented massing, creating a welcoming and less imposing presence.
This approach provides varied perspectives throughout the property, enhancing the overall experience of the space.
Energy Efficiency and Resource Management
Key design elements are used to reduce energy demand.
Additionally, water harvesting and solar energy systems contribute to lowered operational costs, promoting sustainable living.
Structural Composition
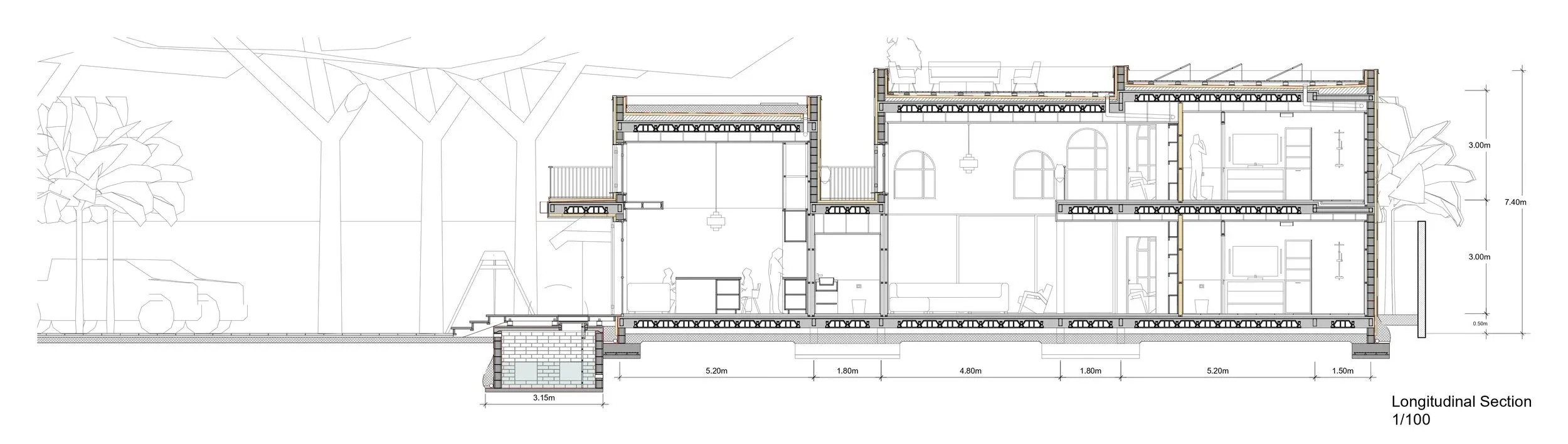
The structure features cement/ceramic vaults with precast secondary beams for slabs, supported by reinforced concrete beams and columns. This design provides flexibility and reduces weight, allowing the building to adapt to future needs.
Off-Grid Capability
The compound is designed with the potential to function off-grid for extended periods, supporting sustainable independence in energy and water resources.
We also see how natural light reaches the basement spaces through subaquatic windows integrated into the reflecting pool above, enhancing both interior quality and energy performance. Finally, an exterior walkway wraps around the new volume, functioning as a public circulation route as well as a secondary evacuation path in case of emergency.

